15 000 zł
powierzchnia:
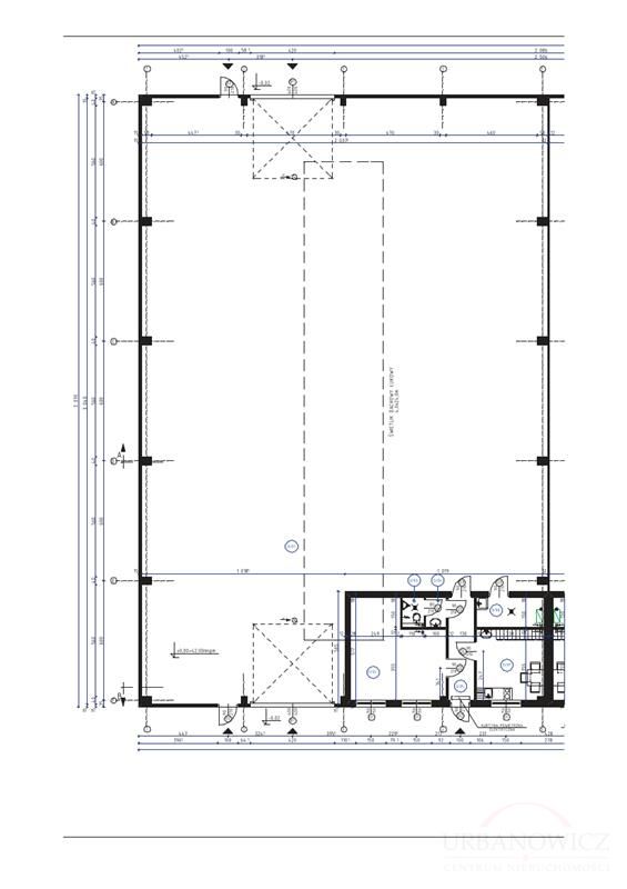
600,00 m2
Hala magazynowo-produkcyjna 600 m2, Koszalin, Osiedle Nowobramskie - do wynajęcia.
Na obiekcie znajduje się zaplecze socjalnie (szatnia, jadalnia, toalety).
Wygodny dojazd do hali z dwóch naprzeciwległych stron. Możliwy wjazd na halę z jednej strony i wyjazd z drugiej. Wjazd na halę z poziomu "0".
Ogrzewanie obiektu:
- hala magazynowa: nagrzewnica nadmuchowa gazowa
- zaplecze socjalne: ogrzewanie elektryczne jako dodatkowe żródło ciepła.
Hala posiada dwie, duże bramy wjazdowe i trzy odrębne wejścia. Posadzka bezpyłowa. Hala dobrze doświetlona poprzez duży świetlik sufitowy na całej długości hali. Na zapleczu okna plastikowe. Wokół hali rozprowadzona instalacja elektryczna 220 V. Dostępna energia elektryczna trójfazowa 380 V. Możliwość zamówienia dowolnej wielkości energii elektrycznej.
Obiekt opomiarowany. Własny licznik gazu, wody i energii elektrycznej.
Nieruchomość dobrze skomunikowana z systemem dróg. Leży przy drodze asfaltowej i w pobliżu wewnętrznej obwodnicy Koszalina z łatwym dojazdem do węzła S6 i S11.
Możliwość wynajęcia sąsiednich magazynów. Łączna dostępna powierzchnia to 3.000 m2.
Podane ceny są cenami netto. Do podanej ceny należy doliczy 23% VAT.
Zlecenie prowadzone pod nadzorem Pośrednika, nr licencji: 14825.
Treść niniejszego ogłoszenia nie stanowi oferty handlowej w rozumieniu Kodeksu Cywilnego. Treść ma charakter informacyjny i zalecamy ich osobistą weryfikację. Kontaktując się z biurem Klient wyraża zgodę na przetwarzanie danych osobowych zgodnie z przepisami ustawy z dnia 29 sierpnia 1997 roku o ochronie danych osobowych / Dz.U.Nr. 133 poz. 883/. Klientowi przysługuje prawo do wglądu do swoich danych osobowych i ich aktualizacji.
Doradca odpowiedzialny za ofertę

Zapytaj o ofertę
Aktualnie w notesie nie znajduje się żadna oferta.