Świetna lokalizacja w ścisłym centrum Koszalina, tuż przy dworcu PKP/PKS, w bezpośrednim sąsiedztwie głównych arterii miasta. Lokal znajduje się na pierwszym piętrze w bocznej nawie budynku (od strony ul. Jana z Kolna), z wejściem klatką schodową bezpośrednio od dużego parkingu.
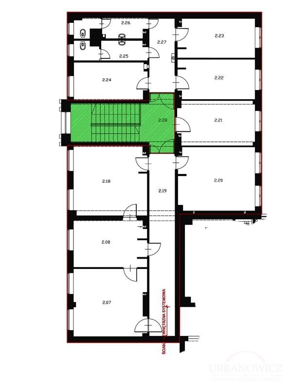
Powierzchnia: 191,68 m²
8 pomieszczeń biurowo-użytkowych (9,16–23,60 m²)
2 toalety
Stan: do remontu/adaptacji
Ogrzewanie z sieci miejskiej (MEC) – instalacja do wykonania wewnątrz lokalu
biuro (IT, marketing, księgowość, projektowanie)
kancelarię lub siedzibę firmy
podział na małe mieszkania inwestycyjne
adaptację pod mini hostel lub działalność najmu krótkoterminowego
ścisłe centrum, 50 m od dworca PKP/PKS
bezpośrednie wejście z ulicy i parking przy wejściu
komunikacja miejska, usługi, urzędy i gastronomia w zasięgu 2–3 minut pieszo
bardzo dobra ekspozycja i widoczność od strony ul. Jana z Kolna
Transakcja zwolniona z podatku VAT
Możliwość zakupu podobnych lokali w budynku (różne powierzchnie i układy)
Budynek o konstrukcji żelbetowo-murowanej, dawniej siedziba banku – wysoki standard konstrukcyjny
Zapraszamy na prezentację – to lokal z ogromnym potencjałem inwestycyjnym i biznesowym!
Oferta pod opieką licencjonowanego pośrednika (nr lic. 14825)
Treść niniejszego ogłoszenia nie stanowi oferty handlowej w rozumieniu Kodeksu Cywilnego. Treść ma charakter informacyjny i zalecamy ich osobistą weryfikację. Kontaktując się z biurem Klient wyraża zgodę na przetwarzanie danych osobowych zgodnie z przepisami ustawy z dnia 29 sierpnia 1997 roku o ochronie danych osobowych / Dz.U.Nr. 133 poz. 883/. Klientowi przysługuje prawo do wglądu do swoich danych osobowych i ich aktualizacji.
Doradca odpowiedzialny za ofertę

Zapytaj o ofertę
Aktualnie w notesie nie znajduje się żadna oferta.