Skrajny dom szeregowy, położony w ustronnym miejscu na przedmieściach Koszalina, przy ul. Pastelowej (rejon Szczecińskiej).
Prezentujemy dom z 2012 roku o powierzchni użytkowej 126 m2, położony na kameralnie położonej działce o powierzchni 286 m2.
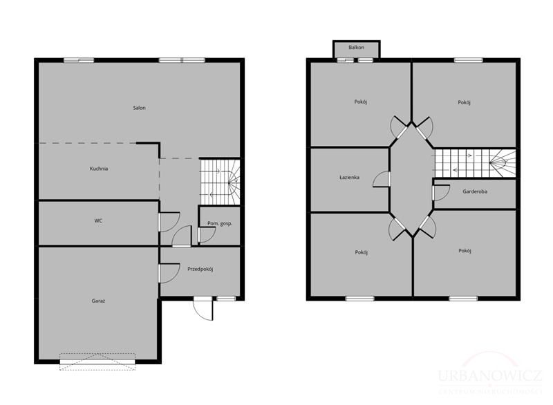
W skład nieruchomości wchodzi 5 pokoi, przedpokój, hall, wc, łazienka z wc, spiżarnia, kuchnia, garderoba oraz garaż w bryle budynku.
Niezwykle funkcjonalny układ pomieszczeń ! Po wejściu do nieruchomości mamy szeroki przedpokój z oknem, w którym znajdzie się miejsce na dużą garderobę. Stąd jest również przejście do garażu (15,5 m2). Przechodząc dalej mamy po lewej stronie wc, po prawej przestronną spiżarnię z pralnią, a na wprost duży salon, z zachodnią, bardzo słoneczną wystawą okienną. Z salonu wyjście na taras i ogród. Kuchnia częściowo otwarta na salon, usytuowana po lewej stronie w ustronnym miejscu.
Na piętro prowadzą jesionowe, gustownie podświetlone schody z elementami metaloplastyki. Mamy tu przedpokój, z którego niezależnie wchodzimy do kolejnych pomieszczeń. Mieszczą się tu 4 ustawne pokoje, w tym jeden z wyjściem na balkon, łazienka z wc i garderoba.
Ogrzewanie gazowe - kocioł 2-funkcyjny firmy Ariston. Dodatkowym atutem nieruchomości jest kominek tradycyjny z rozprowadzeniem ciepła do górnej sypialni, który znacząco wpływa na zmniejszenie kosztów ogrzewania, które i tak są niskie.
Na parterze rolety zewnętrzne sterowanie ręcznie, w pokoju z balkonem na poddaszu - roleta elektryczna.
Działka zagospodarowana z licznymi nasadzeniami. Niewątpliwym atutem jest altana, gdzie nawet przy niepogodzie możemy spędzić czas z rodziną i zjeść wspólny posiłek. Na działce mieści się również wiata do przechowywania drzewa. Na ogrodzeniu wokół budynku rozpościera się dzikie wino, które nadaje ogrodowi podmiejski, uroczy klimat.
Bardzo atrakcyjna lokalizacja! Zjazd z ulicy Szczecińskiej w pobliżu byłego Motelu Trawa. Na osiedlu sklep Żabka, w którym zaopatrzysz się w artykuły codziennej potrzeby. W niedalekiej odległości nowo powstały market Lidl i Biedronka. Obok osiedla przystanek komunikacji miejskiej nr 6 i 12, dzięki czemu bez problemu skomunikujesz się z resztą miasta. 20 minut spacerem do dworca PKP, PKS i centrum miasta.
Dom sprzedawany z udziałem w drodze wewnętrznej dojazdowej.
Jeśli chcesz zobaczyć wszystkie atuty tego domu na żywo to zapraszam na prezentację !
Oferta na wyłączność. Prezentacja w obecności Pośrednika po uprzednim uzgodnieniu terminu.
Treść niniejszego ogłoszenia nie stanowi oferty handlowej w rozumieniu Kodeksu Cywilnego. Treść ma charakter informacyjny i zalecamy ich osobistą weryfikację. Kontaktując się z biurem Klient wyraża zgodę na przetwarzanie danych osobowych zgodnie z przepisami ustawy z dnia 29 sierpnia 1997 roku o ochronie danych osobowych / Dz.U.Nr. 133 poz. 883/. Klientowi przysługuje prawo do wglądu do swoich danych osobowych i ich aktualizacji.
Doradca odpowiedzialny za ofertę

Zapytaj o ofertę
Aktualnie w notesie nie znajduje się żadna oferta.