Komfortowe mieszkanie w nowym budownictwie z windą, komórką i m.postojowym w hali garażowej.
Prezentujemy lokal mieszkalny o powierzchni 51,33 m2, usytuowany na 2 piętrze w 5-piętrowym budynku z 2014 roku przy ul. Hallera.
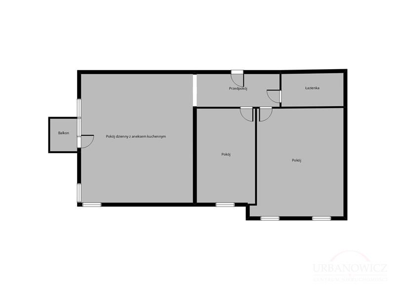
Na metraż mieszkania składa się pokój z aneksem kuchennym, 2 pokoje, łazienka z wc i przedpokój. Z salonu wyjście na balkon.
Mieszkanie narożne, bardzo widne, w stanie do odświeżenia.
Ogrzewanie oraz ciepła woda pochodzą z sieci miejskiej.
Koszty utrzymania nieruchomości to czynsz w kwocie 681,38 zł, w tym zaliczka na c.o., fundusz remontowy, woda (6 m3), śmieci (1 os.), utrzymanie części wspólnych. Dodatkowo jedynie energia według zużycia.
Do mieszkania można dokupić komórkę lokatorską o powierzchni 5,51 m2, usytuowaną na tej samej kondygnacji w kwocie 10 000 zł oraz miejsce postojowe w podziemnej hali garażowej o powierzchni ok. 20 m2. w kwocie 35 000 zł.
Na dziedzińcu budynku plac zabaw dla dzieci. W niedalekiej odległości pełne zaplecze usługowo - handlowe, Wodna Dolina oraz tereny zielone.
Oferta na wyłączność. Oglądanie w obecności Pośrednika po uprzednim uzgodnieniu terminu.
Treść niniejszego ogłoszenia nie stanowi oferty handlowej w rozumieniu Kodeksu Cywilnego. Treść ma charakter informacyjny i zalecamy ich osobistą weryfikację. Kontaktując się z biurem Klient wyraża zgodę na przetwarzanie danych osobowych zgodnie z przepisami ustawy z dnia 29 sierpnia 1997 roku o ochronie danych osobowych / Dz.U.Nr. 133 poz. 883/. Klientowi przysługuje prawo do wglądu do swoich danych osobowych i ich aktualizacji.
Doradca odpowiedzialny za ofertę

Zapytaj o ofertę
Aktualnie w notesie nie znajduje się żadna oferta.