Przestronne, 3-pokojowe mieszkanie z balkonem i dużą piwnicą, położone na prestiżowym osiedlu - Rokosowie !
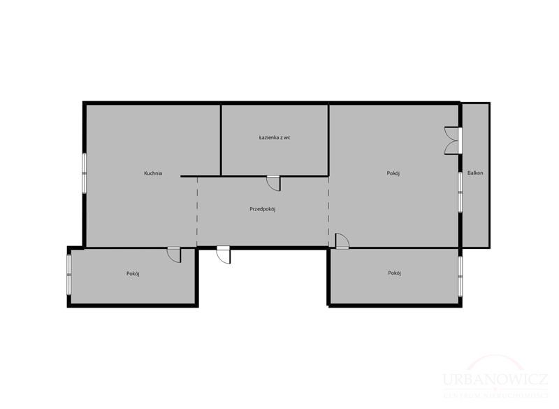
Prezentujemy mieszkanie o powierzchni 77,88 m2, położone na 2 piętrze w 2-piętrowym budynku z 1997 roku.
Składa się z :
Do mieszkania przynależy duża piwnica o powierzchni 9,67 m2.
Łączna powierzchnia lokalu wraz z pomieszczeniem przynależnym wynosi 87,55 m2.
Tuż za budynkiem duży parking, ładny plac zabaw dla dzieci i dużo zieleni.
W 2023 r. przeprowadzany był remont mieszkania, podczas którego wymieniono okna na 3-szybowe, instalację elektryczną oprócz małych pokoi, grzejniki, wykonaną nową zabudowę kuchenną, wyremontowano łazienkę itd. Rok wcześniej wymieniono kocioł gazowy.
W cenie lokalu pozostaje zabudowa kuchenna wraz ze sprzętem AGD oprócz zmywarki, szafa w zabudowie w sypialni i łazience oraz wieszak z szafkami na przedpokoju.
Budynek, w którym mieści się mieszkanie bardzo kameralny, w klatce tylko 5 mieszkań. W tym roku na dachu budynku była kładziona nowa papa.
Koszty utrzymania to czynsz w wysokości ok. 929 zł, w tym m.in. fundusz remontowy, eksploatacja, wywóz nieczystości za 3 os., zaliczka na zimną wodę 9 m3.
Ogrzewanie i ciepła woda z kotła 2-funkcyjnego gazowego firmy Brotje. Dodatkowo płatna energia oraz gaz. Roczny koszt gazu to ok. 2500 zł.
ATUTY NIERUCHOMOŚCI :
Mieszkanie idealne dla osób, ceniących sobie kameralność i poczucie intymności. Jeśli nie lubisz ,,blokowisk" to tu poczujesz się jak w domu !
Oferta na wyłączność. Oglądanie w obecności Pośrednika po uprzednim uzgodnieniu terminu.
Treść niniejszego ogłoszenia nie stanowi oferty handlowej w rozumieniu Kodeksu Cywilnego. Treść ma charakter informacyjny i zalecamy ich osobistą weryfikację. Kontaktując się z biurem Klient wyraża zgodę na przetwarzanie danych osobowych zgodnie z przepisami ustawy z dnia 29 sierpnia 1997 roku o ochronie danych osobowych / Dz.U.Nr. 133 poz. 883/. Klientowi przysługuje prawo do wglądu do swoich danych osobowych i ich aktualizacji.
Doradca odpowiedzialny za ofertę

Zapytaj o ofertę
Aktualnie w notesie nie znajduje się żadna oferta.