PROJEKT KONCECYJNY: BUDYNEK PENSJONATTOWY PRZY UL. RAFIŃSKIEGO dz. nr 86 (obręb 4), W KOŁOBRZEGU
PRZEDMIOT OPRACOWANIA
Przedmiotem opracowania jest projekt koncepcji zabudowy pensjonatowej zlokalizowanej na działce nr 86 obręb 4 położonej przy ul. Rafińskiego w Kołobrzegu.
PODSTAWA OPRACOWANIA I MATERIAŁY WYJŚCIOWE
Podstawą opracowania jest umowa zawarta pomiędzy Inwestorem a Biurem Projektowym.
LOKALIZACJA I ZAGOSPODAROWANIE TERENU
Przedmiotowa działka 86 obręb 4 położonej przy ul. Rafińskiego w Kołobrzegu, zlokalizowana w obszarze Kołobrzeg - Uzdrowisko Wschód.
Działka o powierzchni 1995 m2, w kształcie prostokąta w układzie dłuższego boku na osi wschód-zachód.
Od południa granicę działki wyznacza ul. Rafińskiego, od wschodu ul. Ks. Ściegiennego, od zachodu ul. Korzeniowskiego - stanowiące obsługę komunikacyjną przedmiotowej działki.
Od północy sąsiaduje z dz. 85 na której zlokalizowany jest budynek apartamentowy.
Działka obecnie niezabudowana - zabudowa wcześniej istniejąca na działce, została usunięta.
Obszar zabudowy został wyznaczony obowiązującymi i nieprzekraczalnymi liniami zabudowy - zgodnie z MPZP.
Bryła budynku zlokalizowana jest centralnej części działki.
Dwa główne wejścia do budynku zlokalizowano w osiach części elewacji frontowej umieszczonej w obowiązujących liniach zabudowy od ul. T. Rafińskiego.
Wjazd na teren i jednocześnie do garażu podziemnego zlokalizowano od strony wschodniej z ul. Korzeniowskiego.
ISTNIEJĄCE UWARUNKOWANIA PRZESTRZENNE
Dla przedmiotowego terenu obowiązuje Miejscowy Plan Zagospodarowania Przestrzennego Miasta Kołobrzeg, obejmujący część obszaru miasta Kołobrzeg – Uzdrowisko Wschód dla terenu dz. 86 w obrębie 4 przy ul. T. Rafińskiego: Uchwała nr XXXV/51/517/2017 Rady Miasta Kołobrzeg z dnia 13 września2017 r, zgodnie z którym przedmiotowa działka to teren elementarny UZ,UT.
W/w MPZP określa funkcję i kluczowe parametry możliwej zabudowy i zagospodarowania terenu przedmiotowej działki:
- Przeznaczenie: teren zabudowy usług lecznictwa uzdrowiskowego i turystycznych
- Zasady zagospodarowania: m.in. budynki hotelowe, pensjonatowe
Projektowana zabudowa: budynek pensjonatowy z apartamentami turystycznymi w rozumieniu usług turystycznych.
- Wskaźnik intensywności zabudowy działki nie mniejszy niż 1,0 i nie większy niż 3,5
Projektowany 2,4: 4820 m2, z garażem 3,05: 6065 m2
- Powierzchnia zabudowy na działce nie mniejsza niż 25% nie większa niż 50%
Powierzchnia działki: 1995,0 m2
Projektowana powierzchnia zabudowy: 927,00 m2 (46%)
- Powierzchnia biologicznie czynna nie mniejsza niż 25%
Projektowana powierzchnia biol. czynna: 703,00 m2 (35%)
- Wysokość zabudowy nie większa niż 19,0 m.n.p.m.
Wysokość projektowanego budynku : 18,90 m.n.p.m.
- Dopuszczalne, miejscowe przekroczenie ustalonej wysokości zabudowy o 3,5m pod warunkiem wycofania ścian o minimum 3,0m od obowiązującej linii zabudowy
Zaprojektowano przekroczenie ustalonej wysokości zabudowy o 3,1 m
- Dachy płaskie
- Miejsca postojowe w garażu podziemnym lub na powierzchni działki: - nie mniej 1 na każde rozpoczęte 2 jednostki apartamentowe.
Projektowane 59 jednostek apartamentowych, zaprojektowano 30 miejsc postojowych w garażu podziemnym
- nie mniej niż 2 ogólnodostępne miejsca parkowania przeznaczone na parkowanie pojazdów zaopatrzonych w kartę parkingową
Projektowane są 2 miejsca postojowe przeznaczone na parkowanie pojazdów zaopatrzonych w kartę parkingową w garażu podziemnym
FORMA ZABUDOWY
Projektuje się pięciokondygnacyjny budynek pensjonatowy z garażem podziemnym w obrysie obowiązujących i nieprzekraczalnych linii zabudowy. Prosta i czytelna bryła budynku, kryta dachem płaskim odwzorowuje wizualnie szerokości frontów historycznej parcelacji.
Dwa główne wejścia do budynku zlokalizowano w osiach części elewacji frontowej umieszczonej w obowiązujących liniach zabudowy od ul. T. Rafińskiego.
W elewacjach frontowych zastosowano ryzality i loggie. Przeszklono części elewacji frontowej umieszczonej w nieprzekraczalnej linii zabudowy od ul. T Rafińskiego, na powierzchni 70% powierzchni ściany. Budynek zwieńczono wysuniętym przed linie zabudowy gzymsem.
Projektowana forma budynku, poszczególne jego elementy i estetyka, a także elementy zagospodarowania terenu dostosowane są do wartości zabytkowych strefy i obiektów zabytkowych znajdujących się w jej granicach.
GARAŻ PODZIEMY
Pod budynkiem i częściowo poza jego obrysem, na kondygnacji -1, zaprojektowano garaż podziemny na 32 miejsca postojowe w tym 2 miejsca postojowe przeznaczone na parkowanie pojazdów zaopatrzonych w kartę parkingową w garażu podziemnym. Wjazd do garażu podziemnego zlokalizowano od strony wschodniej bezpośrednio z ul. Korzeniowskiego.
SPIS POMIESZCZEŃ
NAZWA
KOND. |
NR POM. |
NAZWA POM. |
POW. POM. |
POW. KOND. |
| PARTER |
A.0.1 |
APARTAMENT |
31,3 |
449,7 |
| A.0.2 |
APARTAMENT |
27,1 |
| A.0.3 |
APARTAMENT |
46,5 |
| A.0.4 |
RECEPCJA |
33,9 |
| A.0.5 |
PRZYGOTOWALNIA |
44,0 |
| B.0.1 |
APARTAMENT |
29,6 |
| B.0.2 |
APARTAMENT |
26,0 |
| B.0.3 |
APARTAMENT |
36,6 |
| B.0.4 |
APARTAMENT |
53,5 |
| B.0.5 |
APARTAMENT |
43,2 |
| B.0.6 |
MAGAZYN POŚCIELI |
33,0 |
| B.0.7 |
SALA KONSUMPCYJNA |
45,0 |
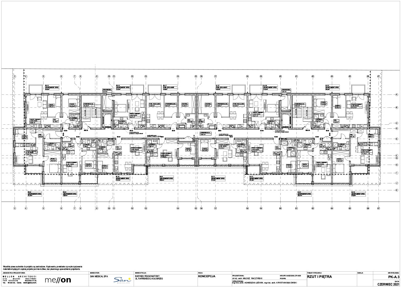
| PIĘTRO I |
A.1.1 |
APARTAMENT |
31,3 |
581,9 |
| A.1.2 |
APARTAMENT |
41,3 |
| A.1.3 |
APARTAMENT |
36,1 |
| A.1.4 |
APARTAMENT |
55,2 |
| A.1.5 |
APARTAMENT |
49,8 |
| A.1.6 |
APARTAMENT |
33,5 |
| A.1.7 |
POM. SOCJALNE |
44,6 |
| B.1.1 |
APARTAMENT |
29,6 |
| B.1.2 |
APARTAMENT |
41,2 |
| B.1.3 |
APARTAMENT |
36,6 |
| B.1.4 |
APARTAMENT |
55,2 |
| B.1.5 |
APARTAMENT |
49,6 |
| B.1.6 |
APARTAMENT |
33,5 |
| B.1.7 |
POM. SOCJALNE |
44,4 |
| PIĘTRO II |
A.2.1 |
APARTAMENT |
31,3 |
581,9 |
| A.2.2 |
APARTAMENT |
41,3 |
| A.2.3 |
APARTAMENT |
36,1 |
| A.2.4 |
APARTAMENT |
55,2 |
| A.2.5 |
APARTAMENT |
49,8 |
| A.2.6 |
APARTAMENT |
33,5 |
| A.2.7 |
APARTAMENT |
44,6 |
| B.2.1 |
APARTAMENT |
29,6 |
| B.2.2 |
APARTAMENT |
41,2 |
| B.2.3 |
APARTAMENT |
36,6 |
| B.2.4 |
APARTAMENT |
55,2 |
| B.2.5 |
APARTAMENT |
49,6 |
| B.2.6 |
APARTAMENT |
33,5 |
| B.2.7 |
APARTAMENT |
44,4 |
| PIĘTRO III |
A.3.1 |
APARTAMENT |
31,3 |
581,9 |
| A.3.2 |
APARTAMENT |
41,3 |
| A.3.3 |
APARTAMENT |
36,1 |
| A.3.4 |
APARTAMENT |
55,2 |
| A.3.5 |
APARTAMENT |
49,8 |
| A.3.6 |
APARTAMENT |
33,5 |
| A.3.7 |
APARTAMENT |
44,6 |
| B.3.1 |
APARTAMENT |
29,6 |
| B.3.2 |
APARTAMENT |
41,2 |
| B.3.3 |
APARTAMENT |
36,6 |
| B.3.4 |
APARTAMENT |
55,2 |
| B.3.5 |
APARTAMENT |
49,6 |
| B.3.6 |
APARTAMENT |
33,5 |
| B.3.7 |
APARTAMENT |
44,4 |
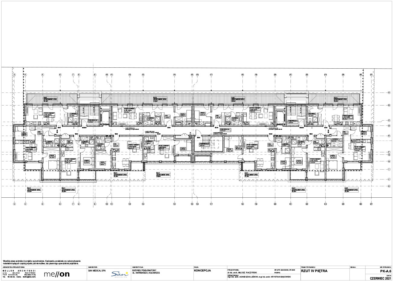
| PIĘTRO IV |
A.4.1 |
APARTAMENT |
57,1 |
455.2 |
| A.4.2 |
APARTAMENT |
36,1 |
| A.4.3 |
APARTAMENT |
53,5 |
| A.4.4 |
APARTAMENT |
30,2 |
| A.4.5 |
APARTAMENT |
43,9 |
| B.4.1 |
APARTAMENT |
29,6 |
| B.4.2 |
APARTAMENT |
41,2 |
| B.4.3 |
APARTAMENT |
36,6 |
| B.4.4 |
APARTAMENT |
53,5 |
| B.4.5 |
APARTAMENT |
30,1 |
| B.4.6 |
APARTAMENT |
43,4 |
| PIĘTRO V |
A.5.1 |
WYJŚCIE NA TARAS |
124,8 |
224,2 |
| B.5.1 |
WYJŚCIE NA TARAS |
99,4 |
| SUMA POWIERZCHNI |
2874,8 |













